
不锈钢美标球阀和法兰闸阀是同属一个类型的阀门,区别在它的关闭件是个球体,球体绕阀体中心线作旋转来达到开启、关闭的一种阀门。 球阀在管路中主要用来做切断、分配和改变介质的流动方向。二片式球阀,三片式球阀,是近年来被广泛采用的一种新型阀门,本类阀门在管道中一般应当水平安装。
Q41F-150LB/300LB/600LB不锈钢美标球阀设计图

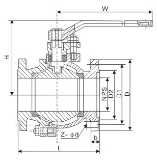
150Lb不锈钢美标球阀外形尺寸和连接尺寸
|
公称通径NPS
|
单位
|
L
|
D
|
T
|
G
|
C
|
n-φd
|
W
|
H
|
|
in
|
mm
|
|
1/2"
|
15
|
mm
|
108
|
89
|
12
|
35
|
60.5
|
4-15
|
115
|
72
|
|
in
|
4.25
|
3.5
|
0.47
|
1.38
|
2.38
|
4-0.59
|
4.53
|
28.3
|
|
3/4"
|
20
|
mm
|
117
|
98
|
12
|
43
|
70
|
4-15
|
115
|
76
|
|
in
|
4.61
|
3.86
|
0.47
|
1.69
|
2.76
|
4-0.59
|
4.53
|
29.9
|
|
1"
|
25
|
mm
|
127
|
108
|
12
|
51
|
79.5
|
4-15
|
150
|
92
|
|
in
|
5
|
4.25
|
0.47
|
2
|
3.13
|
4-0.59
|
5.9
|
3.62
|
|
11/2"
|
40
|
mm
|
165
|
127
|
14.3
|
73
|
98.5
|
4-16
|
200
|
123
|
|
in
|
6.5
|
5
|
0.56
|
2.88
|
3.88
|
4-0.62
|
7.87
|
4.84
|
|
2"
|
50
|
mm
|
178
|
152
|
15.9
|
92
|
120.5
|
4-19
|
200
|
132
|
|
in
|
7
|
6.00
|
0.625
|
3.62
|
4.75
|
4-0.75
|
7.87
|
5.20
|
|
21/2"
|
65
|
mm
|
190
|
178
|
17.5
|
105
|
139.5
|
4-19
|
320
|
164
|
|
in
|
7.5
|
7
|
0.69
|
4.12
|
5.5.
|
4-0.75
|
12.6
|
6.45
|
|
3"
|
80
|
mm
|
203
|
190
|
19.1
|
127
|
152.4
|
4-19
|
320
|
173
|
|
in
|
8
|
7.50
|
0.75
|
5
|
6
|
4-0.75
|
12.6
|
6.8
|
|
4"
|
100
|
mm
|
229
|
229
|
23.9
|
157
|
190.5
|
8-19
|
450
|
210
|
|
in
|
9
|
9
|
0.94
|
6.19
|
7.5
|
8-0.75
|
17.72
|
8.26
|
|
6"
|
150
|
mm
|
394
|
279
|
26
|
216
|
241.5
|
8-22
|
8000
|
288
|
|
in
|
15.5
|
10.98
|
1.02
|
8.5
|
9.50
|
8-0.88
|
31.5
|
1.34
|
|
8"
|
200
|
mm
|
457
|
343
|
29
|
270
|
298.5
|
8-22
|
1120
|
374
|
|
in
|
18.00
|
13.50
|
1.12
|
10.62
|
11.75
|
8-0.88
|
44.10
|
14.72
|
|
10"
|
250
|
mm
|
533
|
406
|
31
|
324
|
362
|
12-25
|
1420
|
366
|
|
in
|
20.98
|
16
|
1.2
|
12.75
|
14.75
|
12-1
|
55.12
|
14.40
|
|
12"
|
300
|
mm
|
610
|
483
|
32
|
381
|
432
|
12-25
|
1420
|
412
|
|
in
|
24
|
19
|
1.26
|
15
|
17
|
12-1
|
55.12
|
16.22
|
Q41F-300Lb不锈钢美标球阀外形尺寸和连接尺寸
|
公称通径NPS
|
单位
|
L
|
D
|
T
|
G
|
C
|
n-φd
|
W
|
H
|
|
in
|
mm
|
|
1/2"
|
15
|
mm
|
140
|
95
|
15
|
35
|
66.5
|
4-15
|
115
|
72
|
|
in
|
5.51
|
3.74
|
0.59
|
1.38
|
2.62
|
4-0.59
|
4.53
|
28.3
|
|
3/4"
|
20
|
mm
|
152
|
117
|
16
|
43
|
82.5
|
4-19
|
115
|
76
|
|
in
|
5.98
|
4.61
|
0.62
|
1.69
|
3.25
|
4-0.75
|
4.53
|
29.9
|
|
1"
|
25
|
mm
|
165
|
124
|
18
|
51
|
89
|
4-19
|
150
|
92
|
|
in
|
6.5
|
4.9
|
0.71
|
2
|
3.5
|
4-0.75
|
5.9
|
3.62
|
|
11/2"
|
40
|
mm
|
190
|
156
|
20.7
|
73
|
114.5
|
4-22
|
200
|
123
|
|
in
|
7.5
|
6.12
|
0.81
|
2.88
|
4.51
|
4-0.88
|
7.87
|
4.84
|
|
2"
|
50
|
mm
|
216
|
165
|
22.3
|
92
|
127
|
8-19
|
200
|
132
|
|
in
|
8.5
|
6.5
|
0.88
|
3.62
|
5
|
8-0.75
|
7.87
|
5.20
|
|
21/2"
|
65
|
mm
|
241
|
190
|
25.4
|
105
|
149
|
8-22
|
320
|
164
|
|
in
|
9.5
|
7.5
|
1
|
4.12
|
5.87
|
8-0.88
|
12.6
|
6.45
|
|
3"
|
80
|
mm
|
283
|
210
|
28.5
|
127
|
168.5
|
8-22
|
320
|
173
|
|
in
|
11.25
|
8.25
|
1012
|
5
|
6.62
|
8-0.88
|
12.6
|
6.8
|
|
4"
|
100
|
mm
|
305
|
254
|
31.8
|
157
|
200
|
8-22
|
450
|
210
|
|
in
|
12
|
10
|
1.25
|
6.19
|
7.88
|
8-0.88
|
17.72
|
8.26
|
|
6"
|
150
|
mm
|
403
|
318
|
36.6
|
216
|
270
|
12-22
|
1120
|
336
|
|
in
|
15.875
|
12.5
|
1.44
|
8.5
|
10.62
|
12-0.88
|
44.10
|
13.23
|
|
8"
|
200
|
mm
|
502
|
381
|
42
|
270
|
330
|
12-25
|
1420
|
385
|
|
in
|
19.76
|
15
|
16.5
|
10.62
|
12.99
|
12-1
|
55.12
|
15.16
|
|
10"
|
250
|
mm
|
568
|
444
|
48
|
324
|
387.5
|
16-29
|
1420
|
370
|
|
in
|
22.36
|
17.50
|
1.89
|
12.75
|
15.25
|
16-1.12
|
55.12
|
14.56
|
欢迎访问浙江信豪阀门有限公司(www.zjxhv.com),本公司主营:不锈钢球阀、不锈钢闸阀、不锈钢截止阀、不锈钢止回阀、高平台球阀、意大利式球阀、碳钢球阀、Y型过滤器。欢迎大家来咨询:0577-88823777。
|